988 sqft Single Family Manufactured Home
6996 95 Highway, Kingsgate

$485,000

Secluded on a 2-acre Waterfront oasis, this easy living 2-bedroom, 2-bathroom home offers an open concept layout, ample storage, and stunning river views. Wood burning stove to keep you cozy. Nestled deep in the trees for privacy, the property allows parking for multiple RVs on its non-zoned land. Enjoy the separate summer guest Park model cottage equipped with a wood burning stove to keep your guests comfortable all year round . You will have room for all your friends and family!! Fenced in garden with raised beds and fruit trees, a greenhouse and a root cellar, perfect to store all your harvest. There are also various outbuildings included with the property. Top highlights include the back deck overlooking the river and the impressive full outdoor kitchen by the water's edge. The peace and quiet this location has to offer, and the Privacy! With plenty of space to entertain friends and family, this charming retreat is perfect for creating everlasting memories and enjoying summer bliss. Only minutes from the boarder. Call your agent for an appointment today! (id:6770)

Contact Us to get more detailed information about this property or setup a viewing.

Contact Us Call Us

  • Price $485,000
  • Land Size 2.0 Acres
  • Age 2004
  • Stories 1
  • Size 988 sqft
  • Bedrooms 2
  • Bathrooms 2
  • Covered Spaces
  • Water Well
  • Sewer Septic tank
  • Listing Office Malyk Realty
  • View River view, View of water
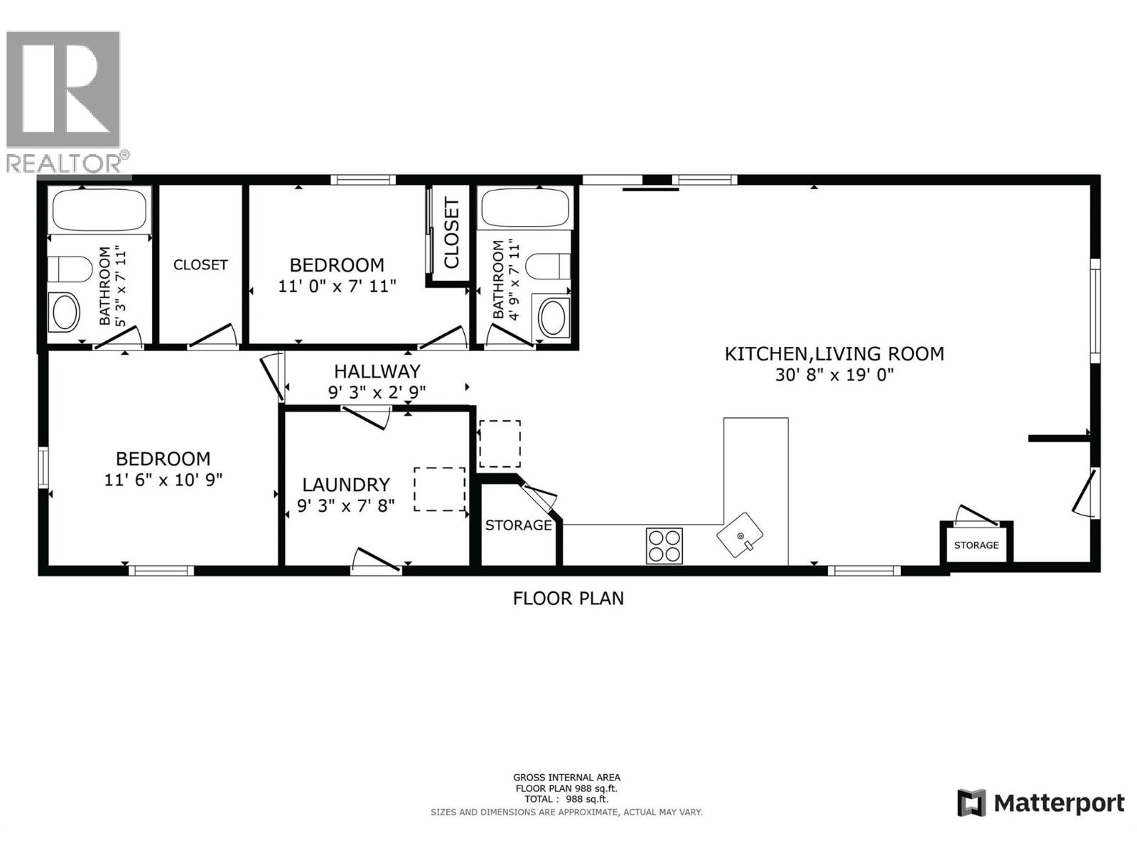
  • Main level

  • Bedroom11' x 7'11''
  • Full ensuite bathroom5'3'' x 7'11''
  • Full bathroom5' x 7'11''
  • Primary Bedroom11'6'' x 10'9''
  • Dining room14' x 8'
  • Living room15' x 19'
  • Kitchen14'8'' x 10'